現代工業風
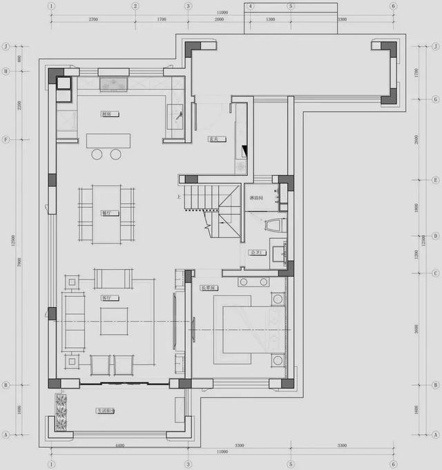
110戶型

開放的客餐廳設計,繼承了LOFT的精髓——隨心所欲的自在。在灰色調中,水泥感的墻面、模板肌理的吊頂、磁磚和灰色毛毯分別提供了粗細各異的體驗。

飽和度較高的色彩出現在軟裝飾品上,橙黃的皮革座椅、粉紅裝飾畫、金質茶幾等設計要素,豐滿了視覺觀感,從灰色背景中跳躍出來,讓空間生機勃勃。
原木材料從頂棚到背景都有展現,略粗糙的手感給人溫暖,也是LOFT的觀念。粗糙如父輩帶老繭的手,充滿力量和安全感,由此傳達出工業復古風格的內在力量。
裝飾的意義在于表達個性和價值觀念,通過這種手段,對沖掉現代主義的冰冷,格調由此誕生。

110戶型平面圖
一層平面圖
二層平面圖

雅致東方風
136戶型

在雅致東方風格的設計中,設計師從當代生活觀念出發,并不囿于傳統,施古不泥古。大理石主墻面嵌入壁爐、包豪斯風格的條凳、黃銅茶幾,混入客廳空間自成一格。

格子柜拋卻裝飾,只留神髓,翹頭案造型的層板,以現代照明方式呈現出精致的線腳,照顧了今人生活的細膩。
以條案、食盒這樣的起居器具,增加了客廳的禪意和煙火氣,過往和當下并無分別,日常就是行禪,是“活潑潑的生活禪”。

柿子紅是軟裝配色的亮點,成熟嫵媚。龜甲和羊角是對自然饋贈的珍視,對稱和不對稱間,孤煙直對落日圓。出于對東方風格的得心應手,躍層戶型在項目未正式發售已經被預定。

穿過衣帽間兼化妝室,衛生間功能完備。大理石的奢華中保持素雅的整體風格,雙洗手臺上垂下吊燈,親切可人。
136戶型平面圖

一層平面圖
二層平面圖
分享題目:樣板間這樣設計,真美!
文章分享:http://www.yijiale78.com/hangye/ruanzhuangsj/n31590.html
聲明:本網站發布的內容(圖片、視頻和文字)以用戶投稿、用戶轉載內容為主,如果涉及侵權請盡快告知,我們將會在第一時間刪除。文章觀點不代表本網站立場,如需處理請聯系客服。電話:028-86922220;郵箱:631063699@qq.com。內容未經允許不得轉載,或轉載時需注明來源: 創新互聯
