
“一個精致的居住空間該是簡約而國際化的,無處不體現生活的閱歷所帶來的成熟與自信。”
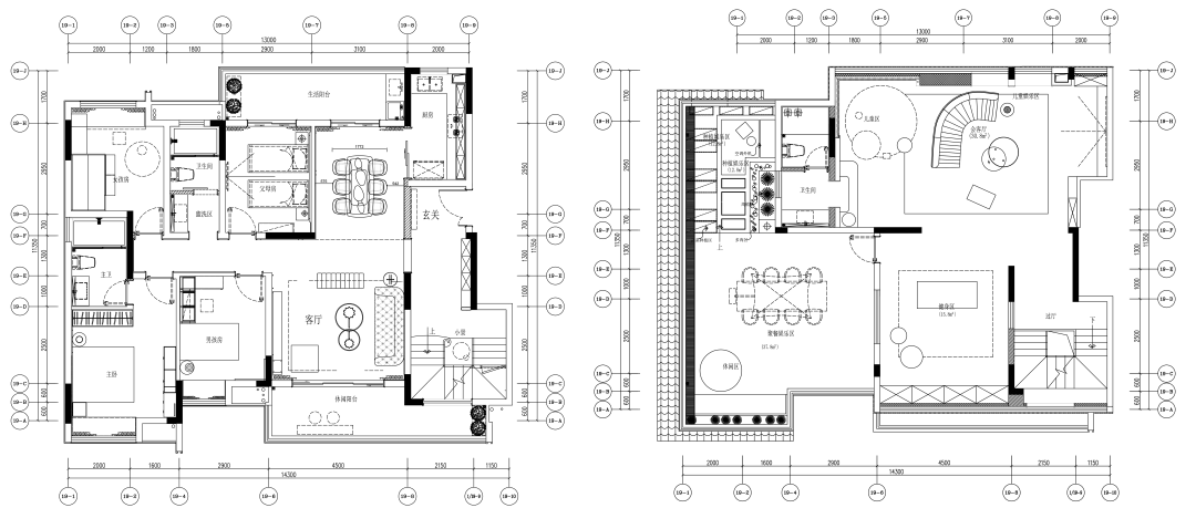
▽平面圖

藝術的真正底蘊不只是感官的直接感受,而是對心靈真實的觸及;動人的往往也不是奢華,也不是奇異,而是精細的體驗。
315㎡慢享“輕”法式 |WΛMI
WΛMI運用這一理念,打造了位于廣西彰泰的315㎡頂層復式住宅。用優雅與精致奢華的橙藍金撞色來營造法式調性住宅的浪漫與“輕”生活慢享格調。
客餐廳區域
設計師并沒有用生硬的線條分割客餐廳區域,而是以一個矩形空間使人們的視覺自動劃分開獨特的餐廳一角,既保持了客餐廳一體的寬闊感,又使餐廳具備一定的私密性,家具的圓潤增添了空間的高級感與流暢性,營造出靜謐舒緩的居住氛圍。
The designer did not divide the guest restaurant area with blunt lines, but used a rectangular space to automatically divide people"s vision into a unique corner of the restaurant, which not only maintained the spaciousness of the guest restaurant, but also made the restaurant have a certain degree of privacy. The sleek design of the soft furnishing adds a sense of high-level and fluency to the space, creating a quiet and soothing living atmosphere.


臥室區域
主臥的裝飾面沿用法式經典元素,倍顯法式調性:沉穩、大氣、精致,加上具有設計感的邊幾,軟裝與硬裝相呼應,在一定程度上為空間潤色不少。
The decorative surface of the master bedroom follows the classic French elements, showing the French tonality: calm, grand, refined, plus the design side table, the soft and hard decorations echo, to a certain extent, it polishes the space a lot.
長輩房延續了整體色調,沉穩不失舒適。營造出居住者從容淡雅,怡情養性的安然生活。
The elder room continues the tone of the public area, calm and comfortable. Create a peaceful life for the elders to enjoy themselves, to be calm and elegant, and to live comfortably.
兒童區域

兒童房則與之沉穩的調性相反,大膽地用藍色與粉色區分孩童空間,大面積的主墻紙簡潔易懂得把孩童的喜好表達清楚,使空間躍動又富有設計感。在兒童玩樂區域上也花了不少心思,男孩的積木墻與女孩的泡泡池,既保障了游戲的安全性也充實了空間,使它保持溫馨、跳躍。
The children"s room is contrary to the noble tone. It is bold to distinguish the children"s space with blue and pink. The large area of the main wallpaper is simple and easy to understand to express children"s preferences clearly, making the space dynamic and full of design.A lot of thoughts were also spent on the children’s play area. The boy’s building block wall and the girl’s bubble pool not only ensure the safety of the game but also enrich the space, keeping it warm and jumping.


二層活動區域
隨即我們的視線來到二層,一眼看去,室內從平面功能布局上已打破常規,大膽地用大面積劃出了休閑廳、健身區與陽臺,再以清晰明亮的橙藍色提亮空間,結合開闊的外景與頭頂的天窗,整個空間無比大氣,使人眼前一亮,豁然開朗。
Immediately, our sight came to the second floor, and at a glance, the interior has broken the convention in terms of the layout of functions, and boldly used a large area to demarcate the lounge, fitness area and balcony, combining the open exterior scene with the skylight above the head, the entire space The incomparable atmosphere makes people"s eyes bright and suddenly enlightened.



恰到好處的健身區與休閑廳的布置也以多元和復合型的空間組合來營造,孩童的玩樂區緊挨著長輩們放松的地方,以一種具備溫度與都市感的空間布局方式,引領一種新穎的家庭成員相處方式。
The proper layout of the fitness area and lounge is also created by a diverse and complex combination of spaces. The children’s play area is next to the place where the elders relax, leading a kind of spatial layout with a sense of temperature and urbanity. A novel way of getting along with family members.
最后我們坐在寬闊的露天花園上遠眺群山,偶爾與親朋好友于此閑暇時小敘,這種“輕”而“慢”的生活體驗又是多少人夢寐以求的呢?
Finally, we sat in the wide open-air garden overlooking the mountains, occasionally chatting with family and friends in our leisure time. How many people dream of such a "light" and "slow" life experience?
網頁名稱:WΛMI|慢享“輕”法式
網頁鏈接:http://www.yijiale78.com/hangye/ruanzhuangsj/n31820.html
聲明:本網站發布的內容(圖片、視頻和文字)以用戶投稿、用戶轉載內容為主,如果涉及侵權請盡快告知,我們將會在第一時間刪除。文章觀點不代表本網站立場,如需處理請聯系客服。電話:028-86922220;郵箱:631063699@qq.com。內容未經允許不得轉載,或轉載時需注明來源: 創新互聯
